CAD Services
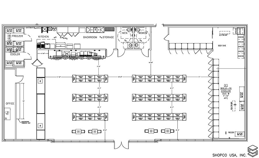
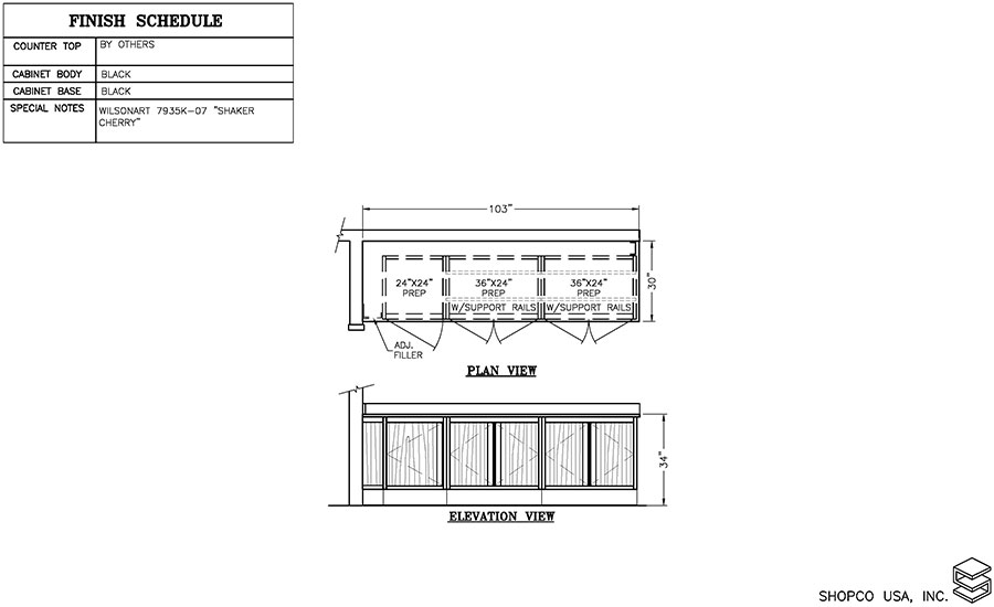
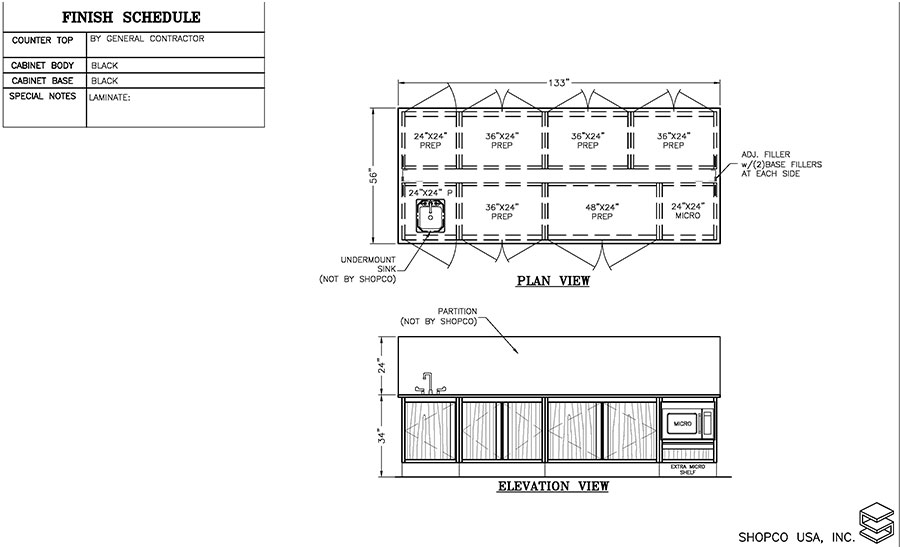
At SHOPCO USA, the CAD Department plays a critical role in turning a customer’s vision into a precise and buildable solution. Using architectural plans provided by the customer, our CAD team designs detailed layouts that incorporate SHOPCO cabinets, shelving systems, and fixtures to ensure an efficient and functional store environment.
These drawings serve as the foundation for collaboration between our teams and the customer. During the sales process, the CAD drawings allow the SHOPCO sales team to walk through every component of the project with the customer—reviewing layouts, discussing product options, and refining details. As conversations evolve, the drawings can be updated to reflect changes, ensuring the final design meets both operational needs and aesthetic goals.
Customer Options & Collaborations
Once the customer approves the final design, the CAD drawings become the blueprint for the entire project. Our Inside Sales team uses them to generate accurate project quotations, while other departments—including Procurement and Installation—rely on them to ensure every component is ordered, delivered, and installed exactly as planned.
The SHOPCO USA CAD Department is led by Xin Liu, who manages a team of dedicated CAD professionals committed to precision, collaboration, and delivering high-quality design support for every project. Through thoughtful planning and detailed design, the CAD team ensures every SHOPCO project begins with clarity, accuracy, and confidence.
















